Welcome to Clore Station
Discover a more harmonious way to live at Clore Station! This development is designed for you to find a life of connection, balance, and beauty. Located sixteen miles from downtown Louisville, within the highly ranked Oldham County school district, Clore Station is being built in Crestwood, Kentucky off exit 14.
PHASE ONE is currently being developed. Walt Schumm is a designated builder for single family homes in Clore Station. Single family homes are 2-story structures ranging from 1,500 to 4,000 square feet, built on lots sized either 36 feet by 100 feet or 40 feet by 80 feet with a walkout basement, and are available as custom builds or spec homes with a garage.

1,500-4,000 sq. ft
2-story, single family homes
CLORE STATION:
a thoughtfully designed, pedestrian-friendly neighborhood where timeless architecture and lush green spaces foster a truly connected way of life.
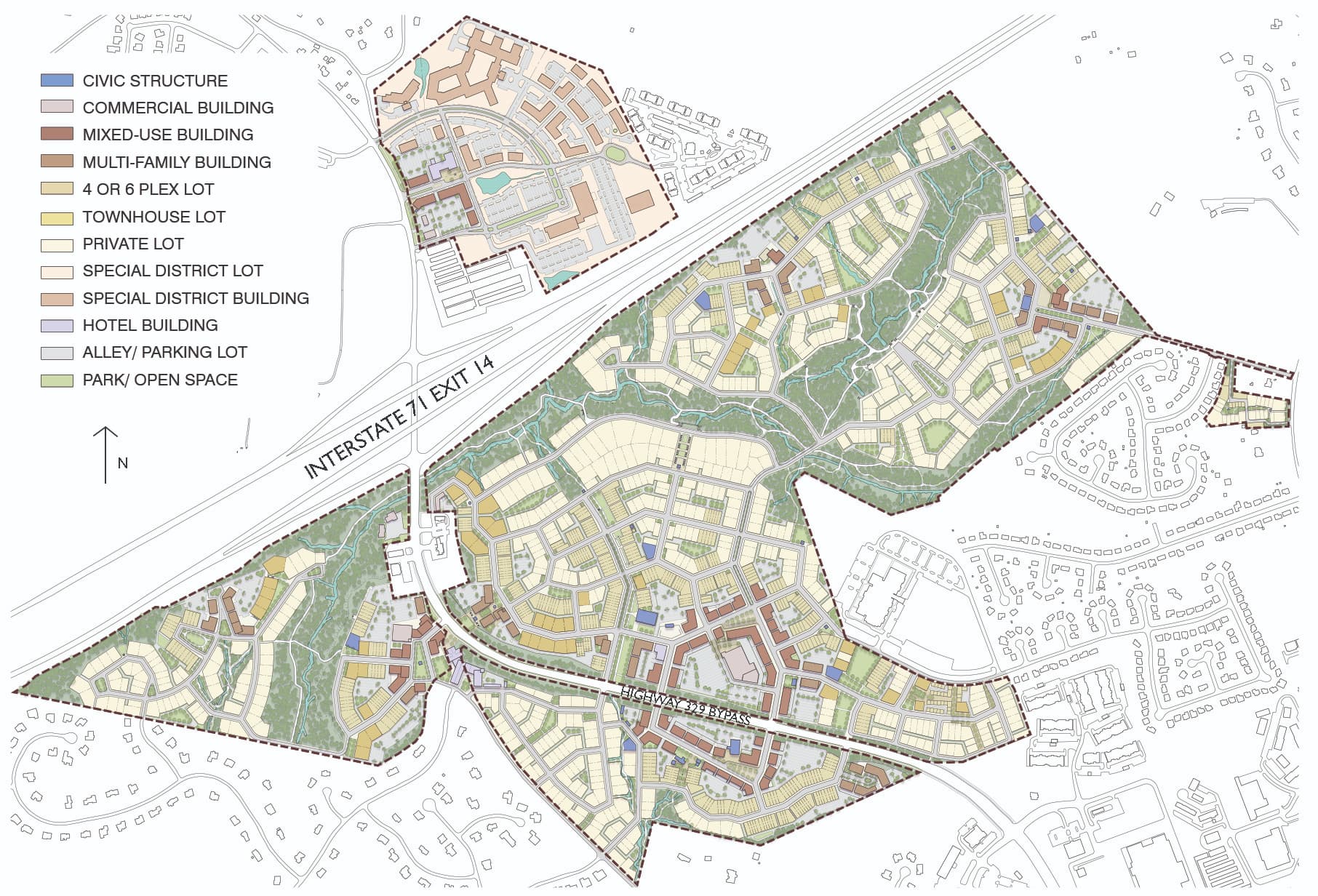
Maps of Clore Station
Phase one map– single family residential space in green.

Clore Station full plan.

Oldham County Schools
Oldham County Schools offer a remarkable public education…the district consistently ranks in the op schools, is nationally recognized, and has a student teacher ratio of 18:1. Oldham County Schools offer many unique programs which set it apart from other districts of its size, including Oldham County Preschool, the Oldham County Schools Arts Center, CAPAA (Creative and Performing Arts Academy), Buckner Alternative School, Camp Literacy Live and the Arvin Education Center. There are targeted programs and facilities for all students and interests!
Clore Station residents will be in the Oldham County school district. The development is currently zoned for these schools:

KENWOOD STATION ELEMENTARY SCHOOL
6321 Veterans Memorial Pkwy
Crestwood, KY 40014
Phone: (502) 241-1452

SOUTH OLDHAM MIDDLE SCHOOL
6403 KY-146.
Crestwood, Kentucky 40014
Phone: (502) 241-0320
